Saint Etienne - ZAC de la Dame Blanche
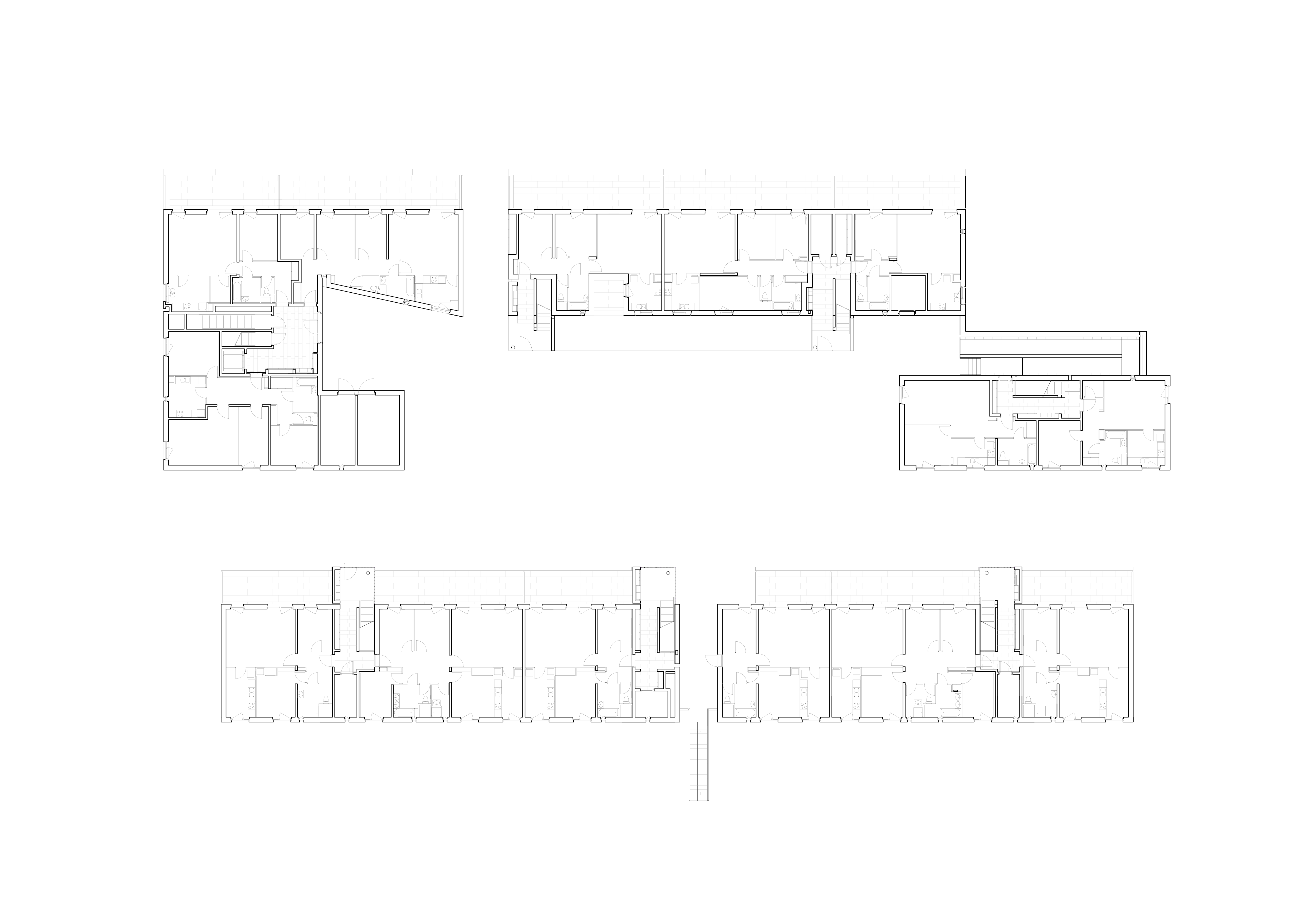
La situation urbaine, la dichotomie et la mixité du programme, partagé entre logements sociaux et logements en accession, ainsi que la densité recherchée dans le cadre de l’opération ont imposé une mise en ordre stricte du projet, tant d’un point de vue urbain qu’architectural. Le bâtiment est ainsi conçu et traité comme une unité extrêmement compacte (afin de limiter au maximum les déperditions) implantée en retrait par rapport à la rue, sur laquelle sont rapportés dans les étages différents dispositifs d’ouvertures, fenêtres et loggias, permettant à l’immeuble de se trouver en alignement sur rue. En façades sud et ouest, à tous les étages, de grands ensembles de loggias et balcons offrent à tous les logements un prolongement extérieur généreux et agréable, tout en contribuant par des dispositifs d’ouvertures, de fermetures, d’occultations et autres jeux de transparences, à l’amélioration des conforts thermiques d’été et d’hiver du bâtiment. Toutes les autres ouvertures (fenêtres) sont traitées suivant le même principe, par le biais d’éléments de serrurerie mis en oeuvre en applique au nu extérieur des façades, parfois dans le prolongement même de la trame des loggias, et intègrent dans leur épaisseur des dispositifs d’occultation.
| Architectes associés | Atelier d'architecture Benoît Crépet |
|---|---|
| Programme | 50 logements locatifs sociaux |
| Lieu | Saint-Etienne, ZAC de la Dame Blanche (42) |
| Date | Livré en 2012 |
| Maître d’ouvrage | Alliade Habitat |
| Surface | 5 315m² SHON |
| Coût | 6 600 000 € HT |
| Objectifs environnementaux | Référentiel Région Rhône Alpes, Qualitel |