Lyon 3 - Part Dieu - Ilot Lafayette
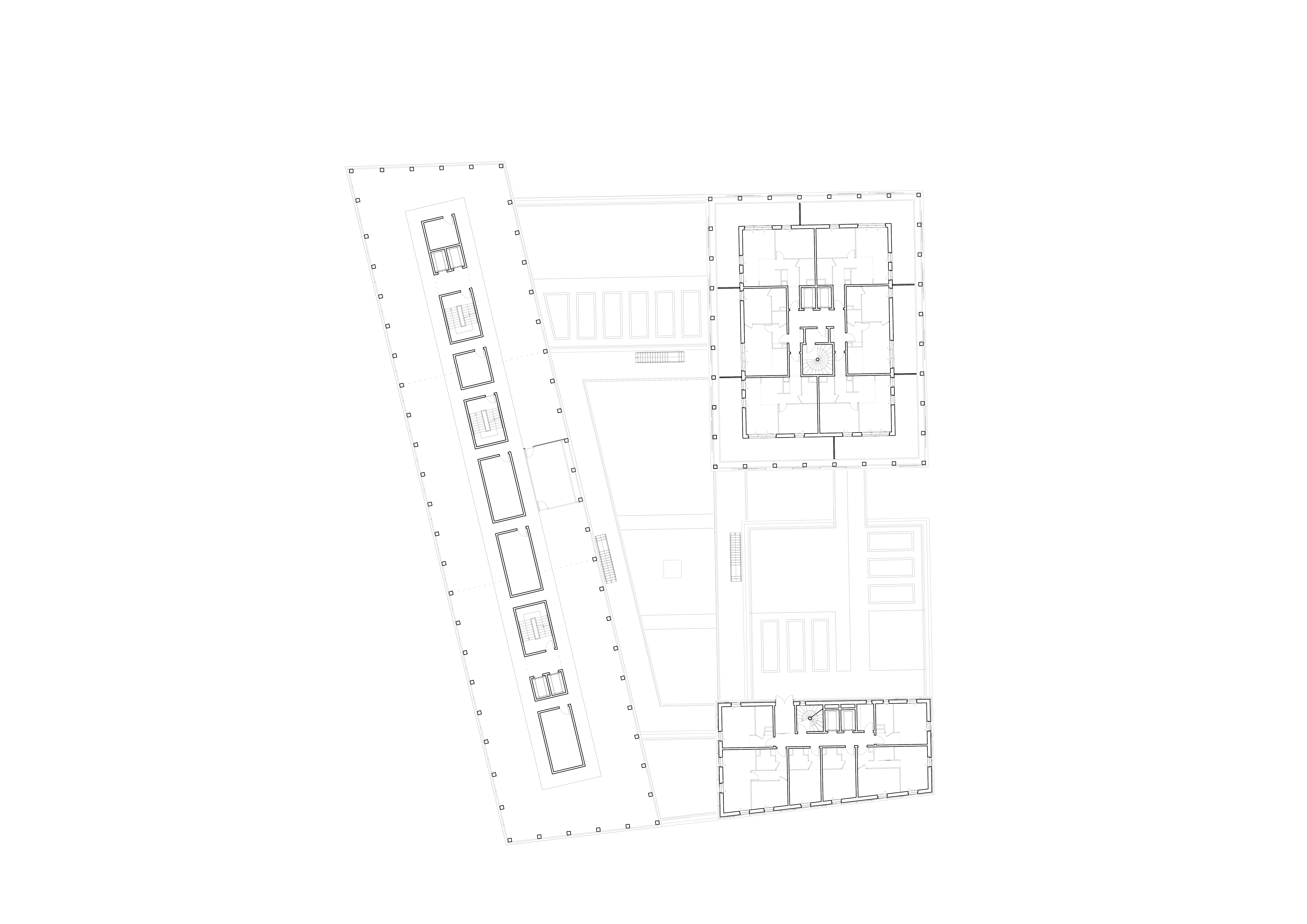
Dès sa création à la fin des années soixante, le quartier de la Part Dieu a été conçu comme un lieu de connexion, d’activité, de commerce, de flux, d’échange et de rencontre. Second centre-ville de Lyon, ville dans la ville, hyper-centre à lui tout seul,..., le quartier de la Part Dieu, aussi connu pour être le second quartier d’affaires français, est également un quartier d’habitat même si cette vocation n’est pas forcément la première à laquelle on pense lorsqu’il s’agit de le qualifier. Il ne lui manquait jusqu’à présent qu’une dimension spirituelle, religieuse, cultuelle. Le projet de l’ilot Lafayette-Bonnel-Villette est pleinement inscrit dans cette volonté de développement et palliera à cette carence, à ce besoin spirituel. Véritable « oasis de vie », c’est à son échelle un condensé du projet de réinvention du quartier de la Part-Dieu. Il l’est dans son programme hybride, mixte, rassemblant des bureaux dédiés, des logements sous deux formes, des lieux d’échange et de rencontre, un jardin-oasis en coeur d’ilot, des locaux d’activité et un centre diocésain comprenant des espaces de co-working et une chapelle. Il l’est aussi dans la morphologie et les intentions décrites avec un socle actif qui porte, unifie, relie en décrivant la totalité de l’ilot ; avec des volumes découpés au-dessus du socle qui affirment leurs identités respectives dans une écriture commune ; avec cette intériorité, ce jardin qui fédère, rafraichit, agrémente et apaise. Nous l’avons conçu ainsi pour que les personnes aient envie d’y habiter, d’y travailler, d’y échanger ou de s’y recueillir.
| Programme | Ensemble mixte : logements collectifs, hébergements jeunes travailleurs, centre spirituel diocésain, bureaux, commerces |
|---|---|
| Lieu | Part-Dieu, Ilot Lafayette - villette - Bonnel, Lyon 3 (69) |
| Date | Concours 2015 |
| Maître d’ouvrage | OGIC et SPL Lyon Part-Dieu |
| Surface | 9 754 m² |
| Coût | 17 000 000 € HT |
| Objectifs environnementaux | RT 2012 |