Lyon 2 - ZAC Confluence - Ilot K
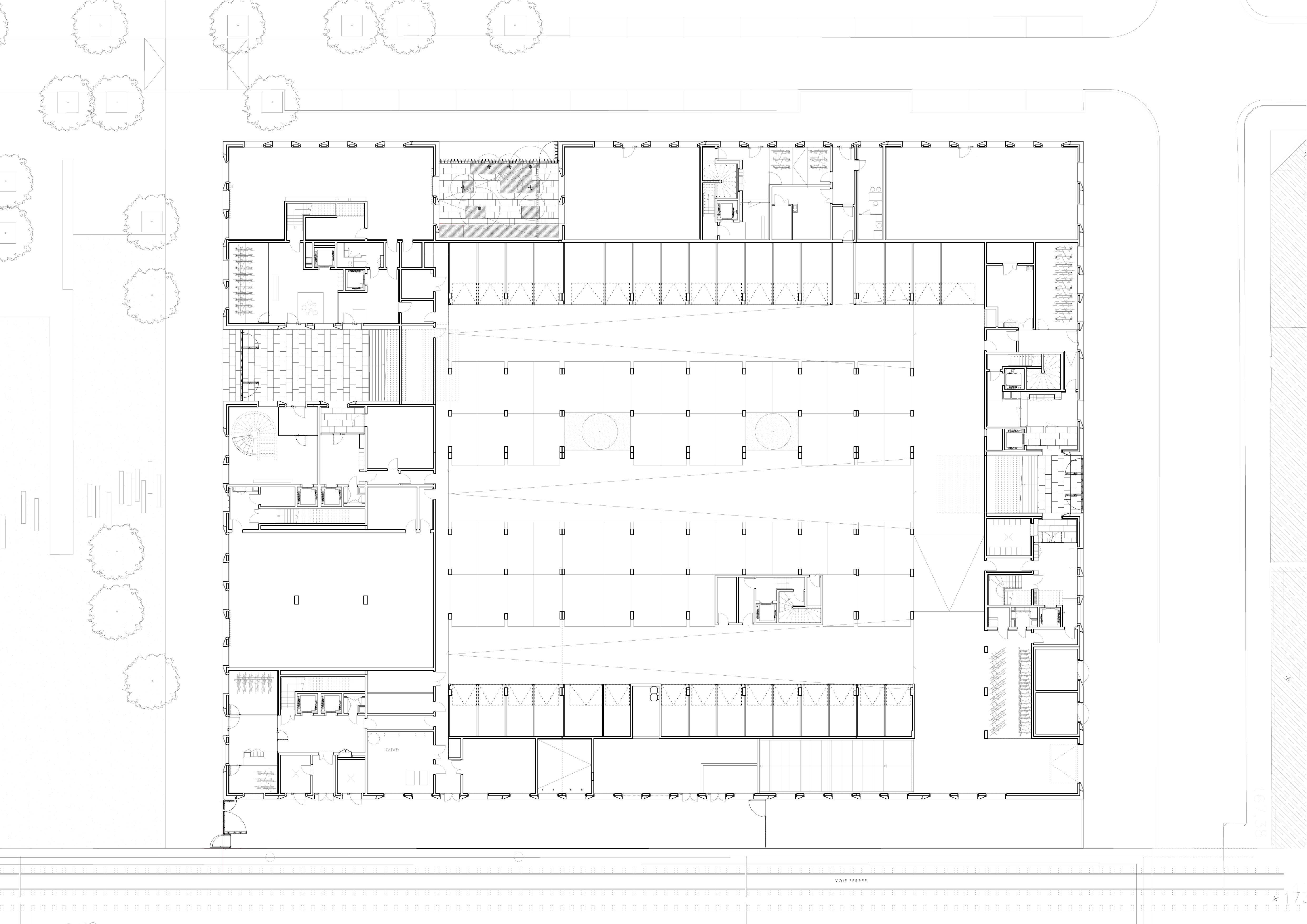
L’îlot K occupe une place particulière dans la géographie et dans la temporalité de l’aménagement de la Confluence, à Lyon. Dernier bastion de la phase 1, en contact direct avec la ville historique et les îlots dits « de Perrache », il est conçu comme un tout architectural pour tester de nouvelles règles d’urbanisme, de développement durable et de mixité verticale.
Le désir de mixité, véritable credo en terme d’urbanisme, est issu de deux idées concomitantes : la mutualisation et l’économie de moyens qu’elle engendre, donc la réduction des dépenses, particulièrement en terme d’énergie et l’envie d’une ville diversifiée, changeante et vivante en opposition à la ville «fonctionnelle».
La superposition avec un épannelage varié des programmes de logements, bureaux et activités, commerces, parking en silo est l’essence même du projet. Sa spécificité est d’être conçu dans une même écriture architecturale et « discrète et complexe ». C’est un seul bâtiment dans lequel les volumes ont été sculptés pour optimiser l’introduction de la lumière et, en même temps éviter de priver de soleil la ville existante.
| Architectes coordonateurs | VERA & Associés Architectes |
|---|---|
| Architectes associés | Atelier d'architecture Benoît Crépet et ATAUB ARTO Architectes |
| Programme | Ensemble mixte de bureaux, 78 logements, Commerces/activités, Parking silo |
| Lieu | Lyon 2 (69) - ZAC Confluence - Rue Bichat et Denuzière |
| Date | 2013 - 2017 |
| Maître d’ouvrage | Nacarat, VEFA pour SNI Habitat |
| Surface | 14 290 m² |
| Coût | 25 000 000€ HT |
| Objectifs environnementaux | BBC Effinergie +, NF Logements HQE, Grand Lyon BBC +, QE Confluence |